經驗豐富完美服務

北京地區免費上門看現場!

北京消防改造電話

010-57113119
熱門:北京消防改造 北京噴淋改造 北京消火栓維修 北京辦公室消防改造 老舊小區消防改造 氣體滅火安裝 北京消防檢測 北京消防維保 消防設備安裝 防火門維修 煙感移位 海灣主機維修

聯系我們

  • 聯系人:郭經理
  • 傳真:010-69552656
  • 電話:400-0346-119
  • 電話:010-57113119
  • 郵箱:506665119@qq.com
  • 地址:北京通州區新華北路117號

北大青鳥火災報警設備

北大青鳥J-SAP-M-VM3332A消火栓按鈕

時間:2018-11-24 15:15:06  品牌: 北大青鳥

[!--oldtitle--]
一、J-SAP-M-VM3332A消火栓按鈕的功能特點

1、J-SAP-M-VM3332A消火栓按紐內置微處理器;

2、采用SMT表面貼裝工藝;

3、手動推進彈簧按鈕后,內部開關動作,報警信號送到控制器,采用專用工具進行復位;

4、可以通過硬線直接啟動消防水泵,并接收其應答信號;

5、二總線,無極性。低功耗,遠傳輸距離1500m;

6、插拔式結構,可像安裝探測器一樣先將底座安裝在墻上,易于施工、維護;為了得到更好的防護等級,可以通過緊固螺絲將消火栓按鈕緊固在安裝底座上。

二、J-SAP-M-VM3332A消火栓按鈕的主要技術指標

1、工作電壓:DC19-28V(控制器提供,調制型)

2、工作溫度:-10℃-50℃

3、儲存溫度:-20℃-50℃

4、相對濕度:≤95%(40±2℃)

5、使用環境:室內型,具備防水功能

6、監視電流:≤0.3mA(24V)

7、報警電流:≤3mA(24V)

8、確認燈:監視狀態瞬時微亮,報警常亮(紅色),水泵應答燈為綠色,動作后常亮。

9、外形尺寸:88.5mm長X88.5mm寬X52mm高

10、編址方式:使用專用電子編碼器

11、線制:二總線,無極性

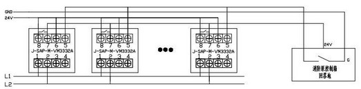
三、J-SAP-M-VM3332A消火栓按鈕接線

1、端子1和2分別接二總線L1和L2;

2、端子7、8正常時為常開觸點,手動報警按鈕按下時閉合。

3、端子6、5分別接24V電源的正和消防泵的應答信號,以實現點亮啟泵回答燈。

接線圖:

J-SAP-M-VM3332A消火栓按鈕接線圖

以上是J-SAP-M-VM3332A消火栓按紐的詳細信息,如果您對J-SAP-M-VM3332A的價格、廠家、型號、圖片有什么疑問,請聯系我們獲取J-SAP-M-VM3332A消火栓按紐的新信息。

億杰消防在線客服

關閉
010-57113119

地址:北京通州區新華北路117號

手機:13366405483

電話:010-57113119

郵箱:506665119@qq.com

在線客服